KOCIOŁ NA PELLET Slim Eko 16kW
Powierzchnia ogrzewana:
dla starego budownictwa: 80-150m2
dla nowego budownictwa: 150-200m2
Kompaktowy kocioł pelletowy Slim Eko oparty na wymienniku rurowym, spełniający wymagania 5 klasy i ecodesign. Wyposażony w wysokiej jakości palnik pelletowy, posiadający automatyczną zapalarkę, rotacyjne oczyszczanie komory oraz wbudowaną dmuchawę. Proces spalania kontrolowany jest przez nowoczesnej generacji sterownik, który reguluje pracę palnika – następuje automatyczne rozpalanie oraz wygaszanie. Kocioł doskonale pracuje nawet w niskim zakresie mocy grzewczej, jest bardzo energooszczędny. Charakteryzuje się cichą pracą, dużą niezawodnością i płynną regulacją intensywności spalania. Poza tym jest ekonomiczny – świetny stosunek ilości zużytego paliwa do ilości wytworzonego ciepła i przyjazny dla środowiska. Opalane naturalnym paliwem, który w czasie spalania nie wytwarza szkodliwych dla człowieka i środowiska związków chemicznych. Dzięki zainstalowanemu systemowi samoczyszczenia, usuwanie popiołu odbywa się raz na jakiś czas.

I am text block. Click edit button to change this text. Lorem ipsum dolor sit amet, consectetur adipiscing elit. Ut elit tellus, luctus nec ullamcorper mattis, pulvinar dapibus leo.
Palnik KIPI – samoczyszczący palnik na pellet
Koniec z czyszczeniem palnika – dzięki obrotowej komorze spalania
Standardowe palniki dostępne na rynku należy czyścić nawet 2 razy w tygodniu. My w naszym palniku zastosowaliśmy innowacyjny mechanizm czyszczenia – obrotową komorę paleniskową oraz nadmuchową, dzięki czemu palnika nie musisz czyścić w ogóle. Zasada działania jest bardzo prosta, a jak wiadomo proste rozwiązania są zawsze najlepsze.
Zastosowanie rotacyjnej komory spalania to wygoda i komfort dla Ciebie, wynikający z oszczędności czasu, którego nie musisz poświęcać na czyszczenie palnika oraz możliwość spalania pelletu gorszej jakości oraz agro-pelletów.

Kocioł spełnia normy nowej od 1 lipca 2018r. klasy piątej PN-EN 303-5:2012 oraz nowo ustalone normy 2020 ECODESIGN.
Zapytaj w swoim Urzędzie Miasta lub Urzędzie Gminy o program ograniczania emisji spalin i jego zasady. Uzyskaj nawet 30-70% dofinansowania i zwrotu w zależności od danej gminy!
Zapoznaj się z filmem promujący kocioł typu SLIM EKO:

Kompaktowy kocioł pelletowy Slim Eko
oparty na wymienniku rurowym, spełniający wymagania 5 klasy i ecodesign. Wyposażony w wysokiej jakości palnik pelletowy, posiadający automatyczną zapalarkę, rotacyjne oczyszczanie komory oraz wbudowaną dmuchawę. Proces spalania kontrolowany jest przez nowoczesnej generacji sterownik, który reguluje pracę palnika – następuje automatyczne rozpalanie oraz wygaszanie. Kocioł doskonale pracuje nawet w niskim zakresie mocy grzewczej, jest bardzo energooszczędny. Charakteryzuje się cichą pracą, dużą niezawodnością i płynną regulacją intensywności spalania. Poza tym jest ekonomiczny – świetny stosunek ilości zużytego paliwa do ilości wytworzonego ciepła i przyjazny dla środowiska. Opalane naturalnym paliwem, który w czasie spalania nie wytwarza szkodliwych dla człowieka i środowiska związków chemicznych. Dzięki zainstalowanemu systemowi samoczyszczenia, usuwanie popiołu odbywa się raz na jakiś czas.
Kotły SLIM EKO dostępne są o mocach: 12kW, 16kW, 20kW, 25kW, 30kW oraz 36kW. Dzięki nowoczesnej technologii urządzenie zapewnia komfort użytkowania, oszczędność pieniędzy i czasu oraz bezpieczeństwo podczas użytkowania. Jest to doskonała alternatywa dla paliw takich jak węgiel, olej czy gaz.
Każdy kocioł SLIM EKO działa w oparciu o regulatory firmy PLUM. Zarządzają one procesem wytwarzania ciepła, jak i rozprowadzaniem go po systemie grzewczym. Dzięki swojej prostej i intuicyjnej obsłudze gwarantują komfort użytkowania. Nasze regulatory zapewniają użytkownikowi: zarządzanie ogrzewaniem budynku i ograniczają zużycie paliwa nawet o kilkadziesiąt procent, które idzie zauważyć dzięki wymiernych oszczędnościach finansowych. Umożliwiają optymalnie spalanie opału zapewniają użytkownikowi komfort cieplny na najwyższym poziomie. Odpowiadają na oczekiwania użytkownika w zakresie zarządzania pracą urządzenia grzewczego w sposób prosty i bezproblemowy (możliwość zmiany parametrów pracy palnika przez internet) zapewniają użytkownikowi bezpieczeństwo, dzięki zastosowaniu systemów alarmowych.

KORPUS KOTŁA WYKONANY JEST Z BLACH STALOWYCH
Korpus kotła wykonany jest z blach stalowych, łączonych ze sobą za pomocą spawania. Płaskie ściany kanałów wodnych wzmocnione są zespórkami.
Korpus kotła jest na zewnątrz izolowany termicznie. Izolacja wykonana jest z wełny mineralnej, pokrytej płaszczem z blachy stalowej. Czopuch stanowiący kanał zbiorczy spalin przyspawany jest z tyłu kotła. Do kotła montowany jest sterownik oraz podajnik paliwa z zasobnikiem.
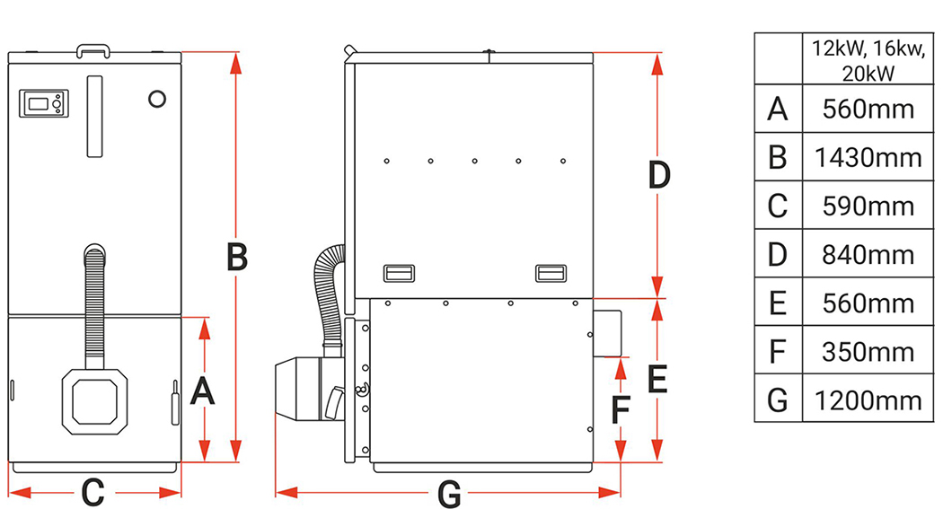
WYMIARY

Sterownik ecoMAX 860
ecoMAX 860P to urządzenie wykonane w zaawansowanej technologii dołączane do zestawu kotła SLIMEKO. Kontroluje proces spalania w kotłach na paliwo stałe z zapalarką. Standardowo obsługuje obieg grzewczy CO i CWU oraz obieg mieszaczowy. Regulator dostępny jest w kompletnej zabudowie oraz w wersji z wyjmowanym panelem umożliwiającym montaż na przedniej części kotła.Ten mikroprocesorowy regulator nowej generacji oznacza dla użytkownika:
intuicyjną i prostą obsługę
korzystanie z wielu ciekawych funkcji
unikalny design
system regulacji TOUCH & PLAY
atrakcyjny wyświetlacz, na którym wyświetlane są informacje w postaci czytelnych ikon
komfort poprzez współpracę ze zdalnym sterowaniem ecoSTER
komfortowe sterowanie on-line pracą kotła przez Internet


Sterownik ecoTOUCH 860 – opcja dodatkowa
ecoTOUCH 860P to urządzenie wykonane w zaawansowanej technologii, które kontroluje proces spalania w kotłach z zapalarką na paliwo typu pellet oraz jest przystosowany do obsługi energooszczędnych pomp elektronicznych. Ten mikroprocesorowy regulator nowej generacji oznacza dla użytkownika:
intuicyjną i prostą obsługę
korzystanie z wielu ciekawych funkcji
unikalny design
atrakcyjny dotykowy wyświetlacz, na którym wyświetlane są informacje w postaci czytelnych ikon
komfort poprzez współpracę ze zdalnym sterowaniem ecoSTER
komfortowe sterowanie on-line pracą kotła przez Internet

Pierwszy na rynku taki palnik
Komora paleniskowa obracając się oczyszcza się z popiołów i żużli, dzięki temu palnik cały czas pracuje efektywnie, bez spadków mocy i nigdy nie dochodzi do jego zapychania się. W pełni zautomatyzowany palnik umożliwiający spalanie paliwa stałego typu pellet oraz agro-pellet. Firma KIPI gwarantuje najwyższą jakości wykonania i dbałość o szczegóły.













